南向きLDK20帖の新築戸建♪価格下がりました!
名古屋市南区氷室町
明治小学校◆明豊中学校区で新築戸建をお探しの方必見です♪
南向きのLDKで家族の集まる空間に陽光注ぎ込む新築戸建が
3799万円→3599万円に価格DOWNしました!

ゆったりとした佇まいの家。
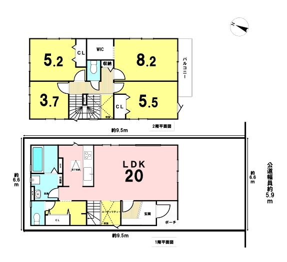
4LDKの間取り、駐車は2台可能。
名鉄常滑線/道徳駅まで徒歩約6分、市営バス「泉楽通1丁目」停まで徒歩約5分の距離に立地。


ユーティリティーのあるリビングは広々20帖!
お部屋の中までたっぷりの陽射しが入ります◎
8.2帖の洋室には大容量のウォークインクローゼットが完備!

南窓は開口部が広く、お部屋に明るさを取り入れます。
アクセントクロスは落ち着いた印象を与えてくれます。

リビングイン階段の横にユーティリティースペースがあります。
上部は吹き抜けとなっているため、明るく開放的です!

折り下げ天井でアクセントがあり、優しい雰囲気♪
食洗機を搭載!機能的でオシャレなキッチンです。

キッチン横にこのような収納スペースがあります。
壁に備え付けられた棚が魅力です♪
食品や生活用品のストックもスマートに保管しておくことが出来そうです◎

ゆったりと入浴可能な大きさの浴室♪
浴室乾燥機が標準装備です!雨の日でも洗濯物を干すのに助かりますね。

WIC付き8.2帖洋室:バルコニーに面し、陽射しがあたたかい空間。
一番広い居室ですので主寝室に最適です◎

明るい日差したっぷりの南バルコニーです♪

ワンタッチで開く玄関収納の扉は、全面鏡張りとなっています。
お部屋が明るく映し出され、広さも感じられる空間に♪

幅員約5.9mの前面道路です。
道路幅が広いので、向かいの住宅とも距離があるため日当たりも確保しやすいです。
突き当りは「道徳和光幼稚園」があります。

駐車は2台可能です。
ゆったりしていますので、落ち着いて駐車できます。

玄関外は、扉を開けても中が見えない造りとなっています。
プライバシーに配慮された造りが嬉しいですね。
完成済の為いつでもご案内可能です!
お気軽にお問合せ下さい(^^)
はじめての方もご安心ください。経験豊富なスタッフが、
物件探しのノウハウや資金計画まで丁寧にアドバイスさせていただきます!

通話料無料
0120-802-034
定休日:水曜日・年末年始(水曜日が祝日の場合は営業)
営業時間:10:00~18:00

